欢迎光临 [ 滚球(中国)官方网站 ] 官方网站! 网站首页      |     联系我们

滗水器

产品列表
格栅除污机系列

ZHG型反捞式格栅除污机

概述
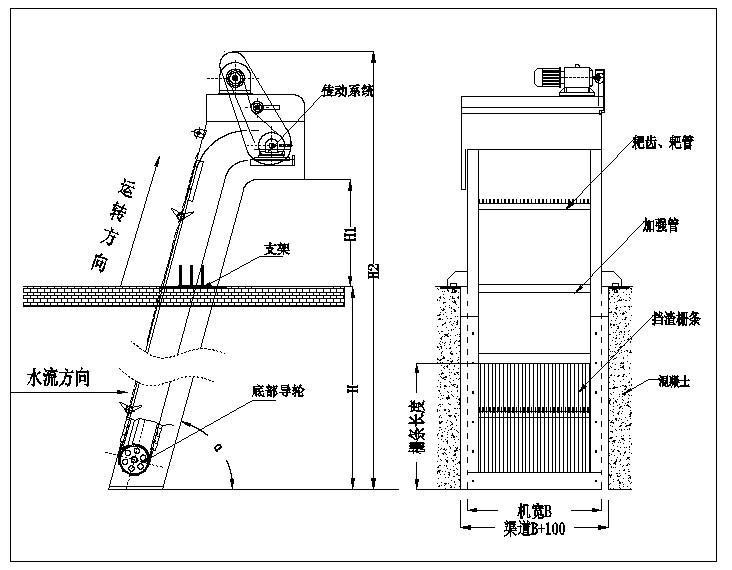
  反捞式格栅除污机为粗格栅,又称雨水格栅,或者回转耙式格栅,是一种用于清除水体重较大固体悬浮物的大型粗格栅设备,本装置可以连续清除液体中的固体悬浮物,设计合理,结构简单,运转安全可靠,自动化程度高,可广泛运用于城市污水处理,自来水厂取水口,雨水泵站,发电厂冷却水取水口等大流量的水处理场所。设备结构参照了回转式格栅除污机的优点,采用与众不同的工作原理,即耙齿链在栅前后作回转运动,当耙齿运转到栅条的迎水面时,即插入栅条缝隙中由下往上作清捞动作,耙齿链采用封闭式,不让杂物侵入,使设备运转平稳。在设备安装时采用整机吊装,只需在集水井两侧的地坪上预埋两块钢板,土建简单,安装维修方便。

工作原理
  反捞式格栅除污机由机架、驱动装置、传动导轮、耙链组合及耙齿、挡渣栅条。挡渣板等组成。在电机驱动下,牵引链条在迎水面由下往上作回转运动。当牵引链上的耙齿轴运转到栅条的迎水面时。耙齿即插入栅条缝隙中由下往上作清捞动作,将栅条上所截留的杂物刮落耙中,清除效率高且彻底。当齿耙运转到机器上,杂物靠自重自行脱落至容器或输送机上,把杂物送走。
特点与应用
       在运行过程中,杂物可能进入牵引链中,将链条卡死,故设计了封闭式牵引链。其主要有链板、链销和滚轮组成,运行时由机架上的导轨作导向,滚轮在导轨上作滚动运动,阻力小且运转平稳。
       水下回转轮定位采用不锈钢材质,配以耐磨铜套自润滑轴承,免去水下部件的日常维护。
       挡渣部分采用固定栅条形式,有较强的耐冲击力,能承受较大的水位差。
       基于以上优点,反捞式格栅应用于较宽的河道拦污、雨水泵站、河道取水口、污水厂粗格栅等大流量的水处理场所。

订货参数
       1、渠道(设备)宽度    2、渠道深度   3、出料高度    4、耙齿间隙 5、安装角度 6、机架材质   7、耙齿材质    8、其余要求

外形示意图
       B=机宽; H=渠深; H1=出渣高度; H2=H+H1+2000; α=安装角度。
       过水流量计算
       反捞式格栅每小时过水流量:Q=K*(B-160)*h*V*3600,其中:
       Q=过水流量(m³/h);K=与格栅间隙有关的流量系数(见系数表);B=格栅机宽(m);h=栅前水深(m),一般按1m或低于渠深0.3m以上;V=过流速度,一般取0.6~1m/s。

主要技术参数
过流系数K
格栅间隙(mm) 15 20 30 50 80 100 >100
流量系数K 0.42 0.5 0.6 0.71 0.8 0.83 0.85
注:可以采用插值法得出其他间隙对应K值的近似值。
ZHG反捞式格栅除污机主要技术参数及外形尺寸列表
型号
(ZHG)
设备宽度
(mm)
沟宽
(mm)
电机功率 (kw) 过水流量(m³/h)
格栅间隙 (mm)
15 20 30 50 80 100
800 800 900 1.1 581 691 829 982 1106 1147
1000 1000 1100 762 907 1089 1288 1452 1506
1200 1200 1300 1.1~1.5 943 1123 1348 1595 1797 1865
1400 1400 1500 1125 1339 1607 1902 2143 2223
1600 1600 1700 1306 1555 1866 2208 2488 2582
1800 1800 1900 1488 1771 2125 2515 2834 2940
2000 2000 2100 1669 1987 2385 2822 3180 3299
2200 2200 2300 1851 2203 2644 3129 3525 3657
2400 2400 2500 2032 2419 2903 3435 3871 4016
2600 2600 2700 1.5~2.2 2214 2635 3162 3742 4216 4374
2800 2800 2900 2395 2851 3421 4049 4562 4733
3000 3000 3100 2576 3067 3681 4355 4908 5092
展开
滚球(中国)官方网站